CHUBU產品介紹
S90ET+發酵桶,處理雞糞問題最佳解決方案
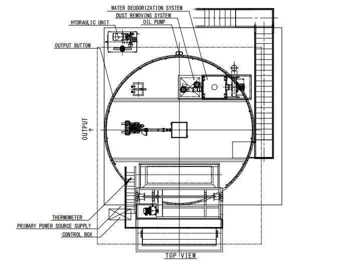
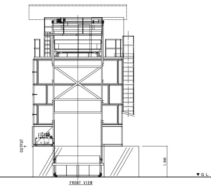
S90ET+ 發酵桶採用先進技術設計,日處理量最高可達 12 噸生雞糞,適用於 80,000 至 120,000 隻蛋雞規模的養殖場。自投料起算,僅需 10天即可完成發酵,產出高品質有機肥,無需額外排放廢水,有效降低環境負擔與法規風險。
憑藉 CHUBU 長達 50 年的技術研發經驗,S90ET+ 具備 使用壽命長、保養成本低、經濟效益佳、佔地空間小、節能省電 等多項優勢。綜合性能卓越,是 台灣蛋雞產業處理雞糞的最佳解決方案。此外,S90ET+ 亦適用於各類畜牧場及廚餘處理場,僅需 10 天,即可快速、高效且具經濟價值地生成高品質有機肥。




1.規模評估
1.1:8萬羽以下之蛋雞場,建議選擇S90ET,每日最高可處理9噸生雞糞。
1.2:8萬羽以上之蛋雞場,建議選擇S90ET+,每日最高可處理12噸生雞糞。
2.樂義開發可協助購買「發酵桶」之客戶申請專案貸款,相關細節請與本公司聯絡。
3.各種畜牧場、廚餘回收皆可使用,高效率生產有機肥,使用功能廣泛。
4.可同時投入廢、死禽,於場內自行處理,避免化製車交叉感染,減少生物安全風險。
※本網站上所有文字、影片、圖片…等,其相關版權皆屬樂義開發及其客戶或合作夥伴所有。
FreightDescription
運費說明
